临武县黄莲村预留地修建性详细规划方案
公示
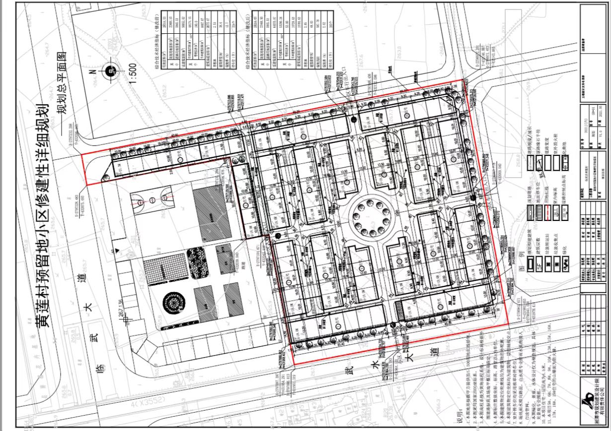
项目简介:
该项目位于武水大道,用地性质为居住用地(R2),总用地面积28314.03㎡,容积率2.85,建筑密度48%。
为提高规划的科学性和民主性,现将规划与建筑方案进行公示,请广大市民提出宝贵意见,任何单位和个人都享有听证权及行政诉讼权。
一、公示时间
2022年4月20日-5月4日
二、公示方式和地点
1.网上公示:http://www.lwx.gov.cn/fazhanguihua/index.html
2.现场公示:施工现场
三、公示意见反馈方式
1、通过网上公众意见留言栏留言
2、信件寄往“临武县自然资源局”
邮编:424300,信封上请注明“规划公示意见”
四、咨询电话:0735-6266306(办公室)
0735-6266355(建设项目管理股)


