| 索 引 号: | 00039/2021-3288960 | 主 题 词: | 公开范围: | 面向社会 | |
| 信息类别: | 综合政务 | 发文日期: | 2021-04-21 | 公开方式: | 主动公开 |
| 统一登记号: | 责任部门: | 水东镇 | 时 效 性: | 长期公开 |
各村委、镇直机关各单位:
《水东镇2021年农村改厕工作方案》已经镇人民政府同意,现印发给你们,请认真组织实施。
水东镇人民政府
2021年4月12日

水东镇2021年农村改厕工作方案
为认真贯彻落实中央一号文件精神,全面实施乡村振兴战略,不断持续推进农村改厕工作,提升农村人居环境质量,打好“十四五”开局之战,根据省、市、县农村改厕工作要求,结合我镇实际情况,特制定本方案。
一、工作目标
推进全县农村改厕工作,2021年改新建无害化卫生户厕131间、拆除旱厕255间。
二、工作要求
(一)严格申报程序。改新建户厕和拆除旱厕前,农户要先填写好申请表,经村签署意见后由乡镇审核盖章签字,送县统筹办审批,同意后方可启动。新建公厕由村提出申请,乡镇初核,县自然资源局选址(国土规划)审定并出具相应意见,再经县统筹办审批同意后方可启动项目建设。
(二)完善改厕资料。镇改厕办认真核查村农户的改厕项目,摸清底子,及时、准确上报并留存信息资料,以备验收。改新建户厕资料包括农村户厕改新建档卡表、安装通粪弯管相片一张、盖板安好后刻好编号相片一张;建设公厕资料包括村委申请报告、公厕管理制度、公厕建设审批表、公厕建设验收表、化粪池安装通粪弯管相片一张、公厕完工后贴好标识标牌正面相片一张;拆除旱厕资料包括农村旱厕拆除档卡表、农户旱厕拆除前的相片和拆除后现场同一角度相片各一张。
(三)强化施工监管。原则上要组建专门施工队伍,加强对施工人员的管理和培训。改新建户厕和新建公厕必须按图纸施工;户厕化粪池用砖砌容积1.6立方米三格式按2:1:3的比例建设,要有三个子母盖或玻璃钢分体式桶,禁止使用塑料桶做化粪池,字模编号要和化粪池盖板连成一体;必须有排气管,排气管高度不低于2米、内径不小于100㎜,排气管顶部应加装伞帽或T形三通。公厕化粪池规定用砖砌容积不小于4立方米按2:1:3的比例建设,化粪池要有三个子母盖、排气管高度不低于2米、内径不小于100㎜,排气管顶部应加装伞帽或T形三通。要加强施工过程的指导和监督,确保施工过程符合无害化改厕技术标准,保证质量安全。
(四)建立公厕管护机制。各村要建立公厕管护工作机制,明确专(兼)职管理人员和管理职责,每日对公厕进行清扫保洁和检修,确保公厕卫生整洁,正常使用,做到建管并重。
三、奖补办法
县财政对农户每拆除一座旱厕奖补600元,其中500元奖补农户、100元用于工作经费,拆除旱厕奖补只限一户一厕。按标准改新建一座无害化卫生户厕,每户奖补1500元。奖补资金,一律纳入财政惠农“一卡通”发放。新建一座4个蹲位无害化卫生公厕奖补3.5万元,每增加一个蹲位奖补0.6万元,每座无害化卫生公厕奖补不超过5万元。新建公厕的村,必须全部拆除旱厕,否则不予以奖补。一个村户厕验收有3户(含)以上弄虚作假,不予验收,该村当年度所有改厕项目不予奖补;未经过镇改厕办审批的自建公厕不予奖补;未建立公厕管护机制或虽建立机制但日常管护不到位的不予奖补。各村要及时在公开栏公示改厕奖补标准、改新建户厕、新建公厕和拆除农户旱厕情况,接受群众监督,坚决杜绝弄虚作假。
四、工作步骤
(一)调查摸底阶段(2021年1月至3月)。各乡镇要制定工作方案,召开动员大会、摸清底子。
(二)全面实施阶段(2021年4月至11月)。全面推进农村改厕工作,禁止新建旱厕。各乡镇、村组织队伍和技术人员进行施工,全面完成年度工作任务(详见附件1)。
(三)考核验收阶段(2021年8月至11月)。各乡镇在完成改厕任务和健全资料台帐(形成电子档案)及初步验收后,由县统筹办牵头组织验收,县财政局派员核查。
五、工作措施
(一)加强组织领导。根据工作需要和人员变动,及时调整充实县农村“厕所革命”工作领导小组成员,由镇党委书记任顾问,镇长为组长,分管领导为副组长,领导小组办公室(简称改厕办)设在农业农村办公室。各村委要进一步强化组织领导,充实办公室力量,建立健全督查机制,做到主要负责人亲自抓,分管负责人具体抓,职能部门配合抓,确保改厕工作有序有效。
(二)明确工作职责。各相关部门要按照各自职责抓好农村改厕工作。镇改厕办负责牵头推进农村改厕工作和农村卫生厕所建设技术指导;财政所负责拨付改厕奖补资金;自然资源所负责无害化卫生公厕的选址定点审核;环保站负责指导厕所污水处理;各村委负责做好宣传引导和施工配合工作,做到改厕一户、合格一户。
(三)严格督查考核。将农村改厕任务完成情况纳入年终绩效考核、乡村振兴考核范围,对每少完成拆除一间旱厕和一户改户厕任务的村委分别扣0.1分,扣完该项分值为止。改厕工作实行“一月一调度一上报、一季度一督查一汇总、半年一小结一通报、年终作总结算总账”的工作机制,镇改厕办将对全县农村改厕工作开展日常督促检查,严把质量关,定期通报进度,定期进行评比,年终进行考核。
(四)广泛宣传发动。充分利用各种媒体,广泛宣传,宣传改厕的好处、优点,让老百姓认识到旱厕的危害,营造良好的工作氛围;动员全社会关注和支持农村改厕,充分调动群众参与农村改厕工作的积极性、主动性和创造性,引导群众文明如厕。
附件:1. 临武县2021年乡镇农村改厕任务安排表
2. 临武县2021年农户改厕自主申报表
3. 临武县2021年农村户厕改新建档卡表
4. 临武县2021年农村公厕建设审批表
5. 临武县2021年农村公厕建设验收表
6. 临武县2021年农村旱厕拆除档卡表
7. 临武县2021年农村旱厕拆除统计表
8. 临武县2021年农村户厕改新建统计汇总表
9. 2021年度“厕所革命”汇总表
10. 临武县2021年农村公共厕所建筑设计说明
11. 户厕1.6立方米三格化粪池剖面图
附件1
水东镇2021年乡镇农村改厕任务安排表
|
乡 镇 |
农村户厕改建任务数(户) |
农村旱厕拆除任务数(间) |
任务要求 |
|
深度村 |
10 |
5 |
各村委必须按时完成旱厕拆除和户厕改建任务。 |
|
水东村 |
18 |
55 |
|
|
旺田村 |
8 |
8 |
|
|
东江村 |
5 |
5 |
|
|
小城村 |
12 |
15 |
|
|
西山村 |
5 |
5 |
|
|
大冲村 |
15 |
40 |
|
|
柳坪村 |
5 |
5 |
|
|
油湾村 |
8 |
40 |
|
|
上塘村 |
5 |
5 |
|
|
岳溪村 |
6 |
5 |
|
|
畔塘村 |
5 |
5 |
|
|
天堂坪村 |
8 |
5 |
|
|
斗水坪村 |
10 |
50 |
|
|
神山村 |
8 |
5 |
|
|
桃竹村 |
3 |
2 |
|
|
合 计 |
131 |
255 |
附件2
临武县2021年农户改厕自主申报表
|
户主姓名 |
|
家庭人口 |
|
联系电话 |
|
|
|
村组地址 |
|
|||||
|
申请改厕 类型 |
□1、水泥现浇三格化粪池 □2、玻璃钢三格化粪池 □3、三格化粪池+人工湿地池 □4、在原化粪池基础上改造成三格化粪池 |
|||||
|
农户承诺 |
为改善环境,提高健康水平,我自愿申请改厕,并承诺兑现以下事项在□内打“√ □一、承担改厕工程建设自行负担部分。 □二、在施工期间将积极配合施工人员做好改厕相关事宜。 □三、正确使用维护无害化卫生厕所,同时做好维护及周边环境卫生。 □四、其他: □五、已完成无害化厕所建设,管理良好,并供人使用。 户主签名或盖章: 年 月 日 |
|||||
|
村意见 |
年 月 日 |
|||||
|
乡镇和国土资源所意见 |
乡镇意见: 年 月 日 |
国土资源所意见: 年 月 日 |
||||
|
县统筹办 意见 |
年 月 日 |
|||||
附件3
临武县2021年农村户厕改新建档卡表
乡镇: 村: 编号:
|
户主姓名 |
|
性别 |
|
联系电话 |
|
|
|
身份证号码 |
|
住址 |
|
|||
|
粘贴相片二张,安装通粪管子一张,盖板安好、刻好编号时一张。 粘贴相片 |
||||||
|
村 负责人签名 |
|
乡镇分管领导签名 |
|
|||
|
县改厕办验收人员签名 |
|
|||||
附件4
临武县2021年农村公厕建设审批表
编号:2021—
|
乡镇 |
|
村 |
|
负责人 |
|
联系 电话 |
|
||
|
建设工程 名 称 |
|
||||||||
|
建设规模 |
|
蹲位数 |
|
||||||
|
公厕开工 时 间 |
|
公厕建设 完工时间 |
|
||||||
|
工程承诺书 |
我村现有人口 人,根据临武县农村改厕工作要求,准备建设一座卫生公厕,位于 ,公厕建筑面积为 平方米,男女各 个蹲位。我们承诺,按时完成改厕工作任务,建立公厕长效管理机制。县里在考核验收中,如发现我村有旱厕未拆除、公厕建设不符合标准或有弄虚作假的行为,则按照相关要求不予拨付改厕奖补资金 。 |
||||||||
|
乡镇规划站意见: |
乡镇自然资源所意见: |
||||||||
|
乡镇人民政府意见: |
县统筹办意见: |
||||||||
附件5
临武县2021年农村公厕建设验收表
乡镇: 村:
|
村 委 (加盖章) |
|
负责人 |
|
联系电话 |
|
||
|
蹲位数 |
|
面积 |
|
||||
|
粘贴相片二张,化粪池安装通粪弯管一张、公厕完工后正面一张。 粘贴相片 |
|||||||
|
村委负责人 签 名 |
|
乡镇分管 领导签名 |
|
||||
|
县改厕办验收人员签名 |
|
||||||
附件6
临武县2021年农村旱厕拆除档卡表
乡镇: 村: 编号:
|
户主姓名 |
|
性别 |
|
联系电话 |
|
|
|
身份证号码 |
|
住址 |
|
|||
|
粘贴相片二张,农户旱厕拆除前一张,旱厕拆除后同一角度一张。 粘贴相片 |
||||||
|
村 负责人签名 |
|
乡镇分管领导签名 |
|
|||
|
县改厕办验收人员签名 |
|
|||||
附件7
临武县2021年农村旱厕拆除统计表
乡镇: 村:
|
编 号 |
村 |
组 别 |
户主姓名 |
身份证号码 |
联系电话 |
备 注 |
|
|
|
|
|
|
|
|
|
|
|
|
|
|
|
|
|
|
|
|
|
|
|
|
|
|
|
|
|
|
|
|
|
|
|
|
|
|
|
|
|
|
|
|
|
|
|
|
|
|
|
|
|
|
|
|
|
|
|
|
|
|
|
|
|
|
|
|
|
|
|
|
|
合 计 |
|
|
|
|
|
|
附件8
临武县2021年农村户厕改新建统计汇总表
乡镇: 村: 时间:
|
序号 |
村名 |
组别 |
户主姓名 |
身份证号码 |
电话号码 |
户厕编号 |
户主签名 |
|
|
|
|
|
|
|
|
|
|
|
|
|
|
|
|
|
|
|
|
|
|
|
|
|
|
|
|
|
|
|
|
|
|
|
|
|
|
|
|
|
|
|
|
|
|
|
|
|
|
|
|
|
|
|
|
|
|
|
|
|
|
|
|
|
|
|
|
|
|
|
|
|
|
|
|
|
|
|
|
|
|
|
|
|
|
|
|
|
|
|
|
|
|
|
|
|
|
|
验收组组长签名: 验收组成员签名:
附件9
(乡镇)2021年度“厕所革命”汇总表
|
村委名称 |
改建户厕(间) |
拆除旱厕(间) |
新建公厕 |
备注 |
|
|
间(数) |
蹲位(数) |
||||
|
|
|
|
|
|
|
|
|
|
|
|
|
|
|
|
|
|
|
|
|
|
|
|
|
|
|
|
|
|
|
|
|
|
|
|
|
|
|
|
|
|
|
|
|
|
|
|
|
|
|
|
|
|
|
|
|
|
|
|
|
|
|
|
|
|
|
|
|
|
|
|
|
|
|
|
|
|
|
|
|
|
|
|
|
合计 |
|
|
|
|
|
|
乡镇分管领导和专干签名: |
乡镇主要领导签名并盖单位公章: |
||||
附件10
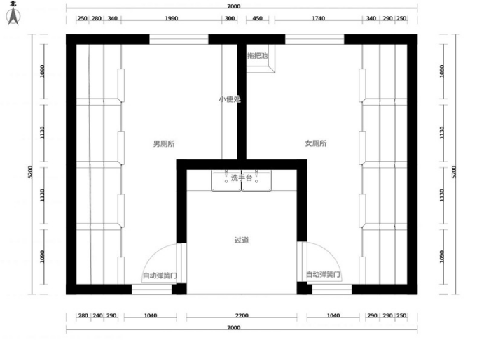
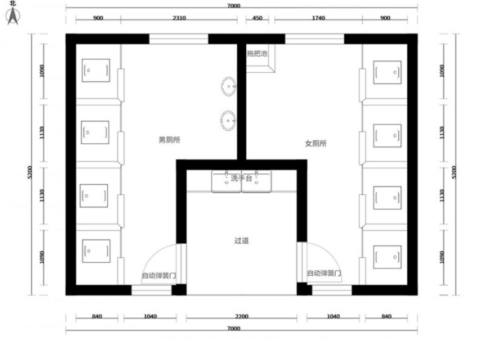
临武县2021年农村公共厕所建筑设计说明
一、建筑规格与设计
1. 建筑设计与面积:外墙长700cm、外墙宽520cm,屋顶出檐30cm格式男女各蹲位。每蹲位砌50cm长、100cm高的挡羞墙。男厕砌净宽37cm、长150cm的小便槽。厕所进门处砌洗手台,安装1个洗手盆。
2. 建筑高度:主体高度300cm。屋顶水泥盖板12cm,出檐30cm。
3. 厕所内地面铺防滑瓷砖,内墙四面贴釉面瓷砖到顶,外墙正面贴墙砖到顶,其他三面水泥抹灰。
4. 四蹲位化粪池容积不小于4立方米。
二、门窗安装
1. 男女厕各安装一橙宽85cm、高210cm的自动弹簧门。
2. 男女厕正面两边180cm处各安装一个宽120cm、高80cm的玻璃推拉窗,男女厕背面180cm处各安装一个宽120cm、高80cm的玻璃推拉窗。
三、水电安装
1. 水路安装:
(1)溜槽式:男、女厕各安装一个容积为0.1立方米,自动开关水冲式水箱。
(2)蹲便器式:每个蹲位安装一个冲水水箱。
(3)洗手池、洗手盆、小便器安装自来水。
2. 电路安装:进门口安装一支20瓦节能日光灯。
临武县农村公共厕所平面设计图一
临武县农村公共厕所平面设计图二

附件12
户厕1.6立方米三格化粪池剖面图
